Vad vi gör och varför!

Boverket - bra bostäder med tidsbegränsat bygglov

Vår lösning möjliggör en kvalitativ boendemiljö och flexibel gestaltning även vid tidsbegränsade bygglov.

Klicka på länken till vänster för att komma till en informationsfilm från Boverket som beskriver hur det går att bygga bostäder med tidsbegränsade bygglov.

Den andra halvan av filmen är från projektet vi levererat till Huddinge Kommun.

En totallösning för akuta och tidsbegränsade behov av bostäder.

Vi levererar kompletta byggnader med minst 10 moduler/plan i 2 till 10 våningar till beställare som exemplevis kommuner, fastighetsägare och byggbolag.

Vi tillverkar bostadsmoduler och har färdiga lösningar för bostäder bestående av 1 – 3 moduler samt andra funktioner som trapphus, hiss, tvättstuga, postrum och lägenhetsförråd.

Med dessa standardmoduler kan vi snabbt möta en specifik behovsbild. Genom att kombinera modulerna på olika sätt så kan vi anpassa byggnadens profil och volym så att den passar in i olika miljöer. Fasader, tak, loftgångsräcken och utebelysning går att detaljera och färgsätta för att passa in med kringliggande bebyggelse och miljö.

Eftersom vi tillverkar modulerna på Ingarö med egen personal så har vi direkt kontroll över tillverkningsprocessen, vilket ger en bra överblick av processen och minimerar riskerna för förseningar.

Vi transporterar modulerna på vanlig lastbil med släp och modulerna lyfts direkt från bil till uppställningsplatsen och eliminerar behovet av ställningar och bodar.

Beprövad produkt

Beprövad produkt

Bostäder levererade till Campus Söderort för vidare uthyrning till Huddinge Kommun

Uppfyller BBR

Uppfyller BBR

Modulerna kan levereras så att de möter samtliga nybyggnadskrav i Boverkets Byggregler

10 våningar

10 våningar

Modulens självbärande konstruktion klarar 10 våningars byggnadshöjd

Liten störning

Liten störning

Genom små markingrepp och en enkel resning så blir störningen av grannar och naturen minimal

+30 år

+30 år

En lång livslängd och återvinningsbara material innebär ett bra resursutnyttjande och ekonomi

Miljövänlig

Miljövänlig

Ett litet energibehov under såväl tillverkningen som i driftsskedet innebär en låg miljöpåverkan

Modultyper

1an - För den nyanlände

Sveriges minsta bostad - med eget kök och badrum, enkelsäng och gott om förvaring. En god grund för exempelvis nyanlända att etablera sig i samhället.

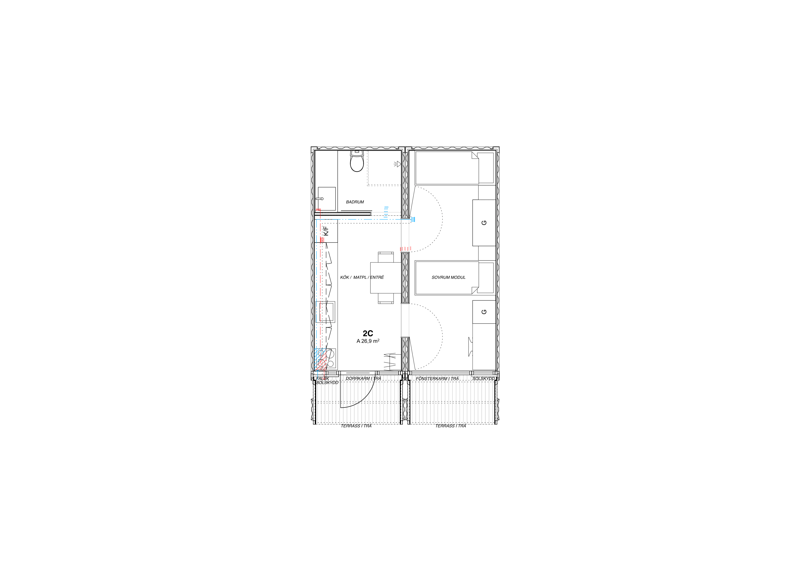
2an - För studenterna

Med ett större kök och badrum samt ett stort delbart sovrum har vi här skapat en perfekt boendelösning för studerande. Ställs med fördel upp på en parkering inne på ett campus.

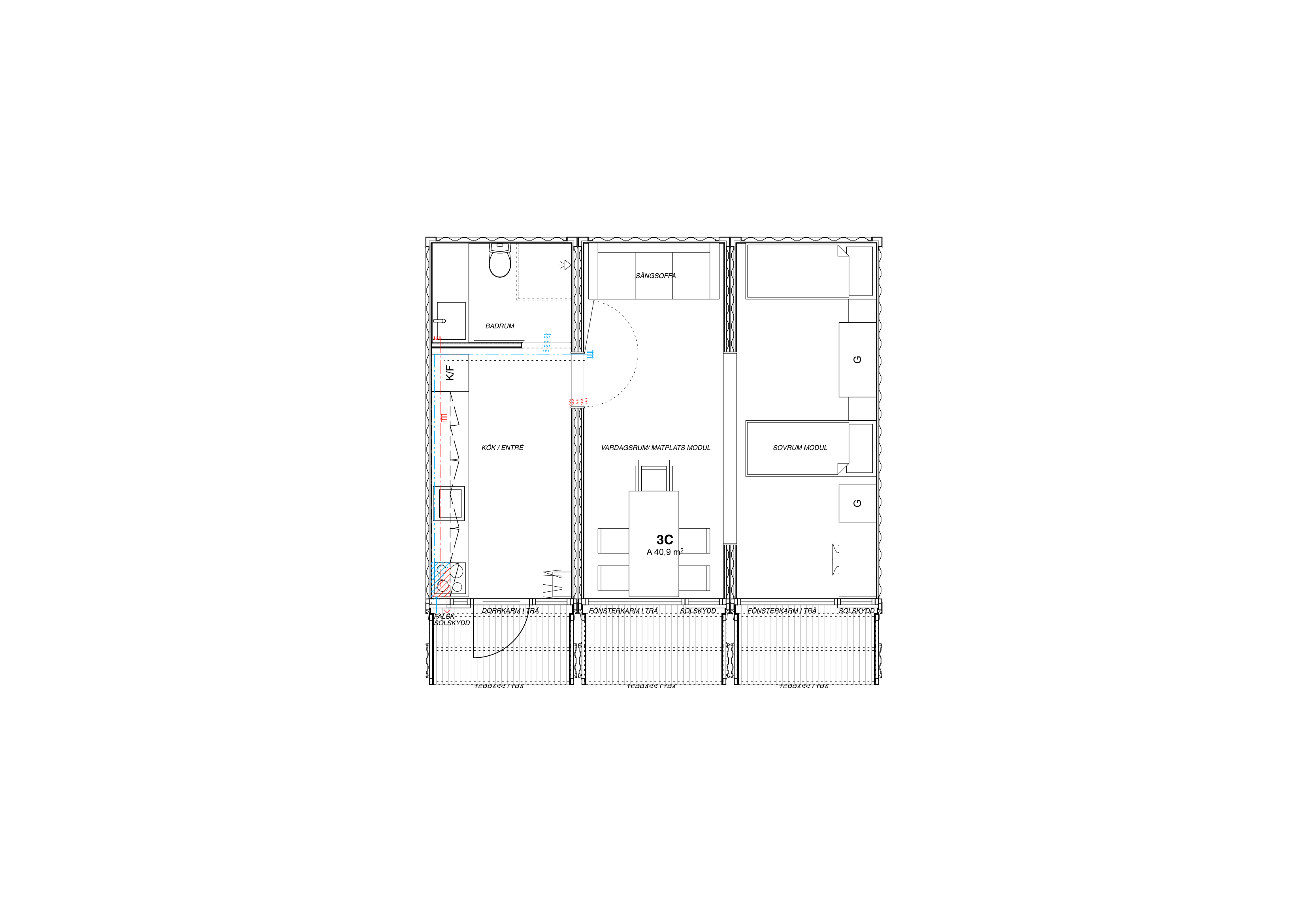
3an - För den lilla familjen

Med kök- och badrumsmodul, vardagsrum samt sovrumsmodul erbjuder vi här en boendelösning för den lilla familjen.

Nedan kan ni se en presentationsfilm från ett projekt om 38 lägenheter levererat
till Huddinge kommun i början av 2018.

Fördelar

BBR-krav bostad Typ av transport Tålighet vid
omplacering
Livslängd Max antal
våningar
Byggnads-
utformning
Fuktrisk
Boxframemodul Ja Vanlig Utmärkt + 30 år 10 Utmärkt Låg
Byggbod i trä Nej Special God + 10 år 3 Dålig Hög
Plattpackad bod Nej Vanlig God + 10 år 3 Dålig Hög
Byggnad av trämoduler Ja Special Dålig + 30 år 4-5 Utmärkt Hög
Betongprefabmodul Ja Special Dålig + 30 år 10 Utmärkt Låg
Attefalsmodul Ja Special Dålig + 30 år 1 Bra Medel

En konstruktion utan köldbryggor säkerställer både god ljud- och värmeisolering.

Modulerna går att stapla upp till 10 st på höjden vilket gör det ekonomiskt att bygga även på dyr mark.

Modulerna har tack vare sina tåliga material och unika design en ekonomisk livslängd på över 30 år och kan under den tiden flyttas åtskilliga gånger utan att skadas.

Frånvaron av organiska material i modulens konstruktion minimerar risken för framtida fuktskador.

Modulerna transporteras upp till tre st på en lastbil, utan bred last eller följebil.

Modulerna uppfyller ljudklass C enligt Boverkets byggregler för bostäder.

Containerstommens plåtskal ser till så att skadorna av ett eventuellt läckage begränsas till en modul.

Vattenburen golvvärme från Uponor säkerställer god inomhuskomfort.

Tysta och energisnåla luftvärmepumpar med den senaste tekniken från Mitsubishi förser byggnaden med värme och varmvatten.

Varje bostadsmodul är utrustad med ventilation med värmeåtervinning från Mitsubishi så att upp till 85% av värmen i frånluften kan tas till vara.

Oftast räcker det med en avgrusad yta för att ställa upp en byggnad med Boxframemoduler.

Modulerna uppfyller boverkets krav för bostäder och 3-rummaren är även fullt tillgänglig.

STANDARDISERAD MODULTILLVERKNING

Projektering & bygglovshandlingar
Bygglovsprocess
 
Fabrikstillverkning
av moduler
 
Markarbeten & grundsättning
 
Uppställning
& anslutning
TIDSBESPARING

TRADITIONELL PLATSBYGGNATION

Projektering & bygglovshandlingar
Bygglovsprocess
 
Markarbeten & grundsättning
 
Husbyggnation
 
Tillsnyggning
av mark
 

Huddinge kommun - Glömsta

Kontakt